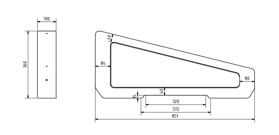
Betonový blok 14° - FB14
Betonový blok FB14 je určený pro ploché střechy a pozemní instalace fotovoltaických panelů.
Umožňuje rychlou montáž bez vrtání a díky své konstrukci zajišťuje vysokou stabilitu i v náročných povětrnostních podmínkách.Blok je určen pro vodorovné (horizontální) uložení panelů se sklonem 14° a je plně kompatibilní s běžnými typy fotovoltaických systémů.
Celková hmotnost jednoho bloku je pouze 25 kg.
